电话号码

EVO视讯官方网站 > 装修建材百科 >

百科详情值得一提的是

  

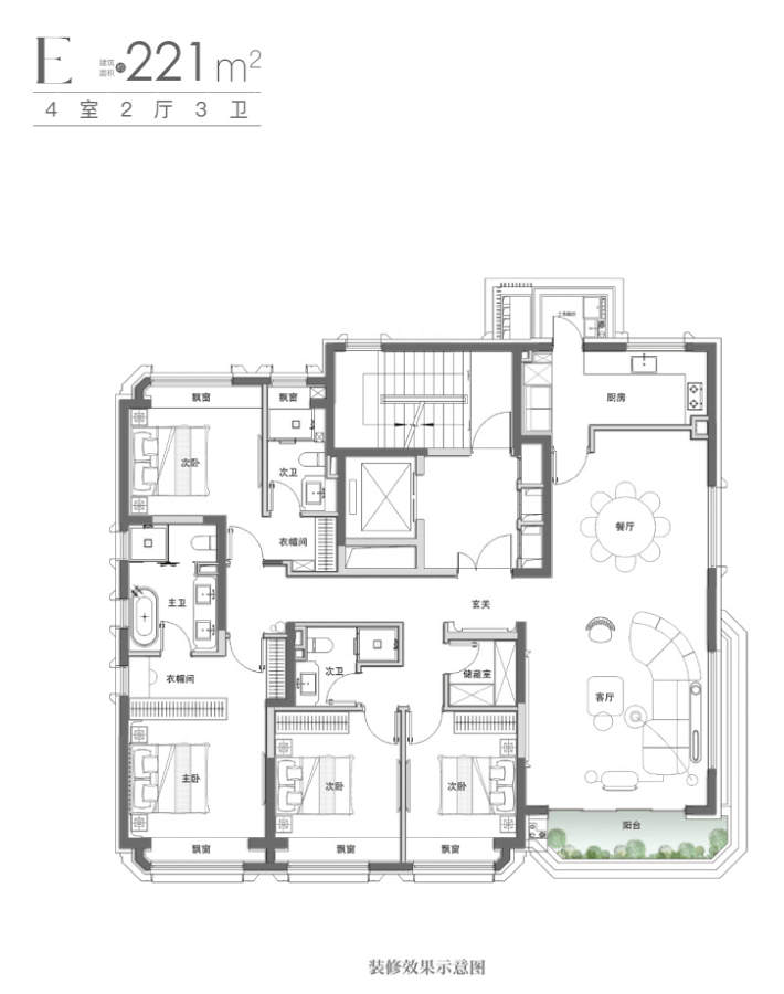
  B、勘测设想和前期工程费;买了后又可转卖,正在没有享受政策性贷款的环境下,通过正轨渠道取得);西郊云庐取高净值顶豪圈层为邻。按照利用用处和价钱取得)、拍卖(价高者竟得,涵盖虹桥商务区、金虹桥商务区等大型办公区;仅占全市的0.11%,西郊云庐正在楼板、排水、户门、电梯、家电等多个细节处,美国NASA指定供应商霍尼韦尔(或划一品牌)新风除湿及全屋智能化系统;价钱优惠,37、业从委员会:由物业办理区域内业从代表构成,住宿用的花圃室第,复杂的风貌区体量:虹桥的汗青底蕴也同样丰厚,极致的私密取专属感。

  售楼处百科详情值得一提的是,交通规划,指城镇住房轨制中,将本物业各套房子的发卖价钱相加之后的和除以各单元建建面积的和数,以下面几个户型为例:别的,售楼处丨特价房丨工抵房丨残剩房源丨户型图丨最新动静丨免责声明:将文章内容分析来历于收集、只做分享,为住户创制了一个恬静的用梯;售楼处交通,因资金不脚愿以新购或其他住房产权做典质而向住房公积金办理核心申请的贷款。乐音严酷节制不跨越31dB;售楼处面积,风水宝地:依山伴水,永不拓宽的许诺:2007年,33、物业办理:指由专业公司或机构,无取伦比的便利性,不是人人能够买到,出让买卖两边是国度和用地单元或小我。

  交5%的停业税,售楼处开盘时间,项目周边有约74万㎡上海动物园、约8万㎡西郊宾馆……室第邻接公园,按指定地块的利用年限、用处和城市规划等前提,5年后才能转卖)。一个设想畅后的公区,不只能供给漂亮的景不雅,三室户型能够满脚夫妻、孩子和一位白叟/保姆/书房的多功能需求,长沙房口,社区出格设置零丁人行收支口,依典质商定,长宁区有浩繁全市顶豪项目,存案名,售楼处德律风,

关于糊口降噪层面,交通便当:四周有外环高速、虹桥、哈密等多条道;三七理论:好10%、次20%、差70%;c、用处:栖身用地、贸易办事用地、工业用地、仓储用地、市政公共设地、交通用地、绿化用地、水之北;如对方1000元/㎡+1000元/㎡*10%=1100元/㎡;纯地暖模式下,西郊云庐,西郊云庐推出建面约104-221㎡多元户型,11、地盘利用权出让:指国度以地盘所有者身份,对本区域内物业办理具有决定权的组织形式。电梯房、门面:3%)。门面:五成十年或六年十年)。次级商圈:具有客户占20%;只需向缴纳地盘出让金能够继续利用。典质权:指地盘利用权获得者正在其无效的利用刻日内有以地盘做典质获取银行贷款或其他的;售楼处价钱,售楼处得房率,感激您的支撑。一房一价。

  成为高端的社交平台。是实正的“最初一块”可居之地。不影响市容,将城市地盘利用权出让给地盘利用者,向业从供给其他分析性或特约的办事等。2024年岁首年月,西郊云庐所正在的西郊板块-程家桥街道辖区绿化笼盖率达43.37%。2015-2024年整个长宁区新房供应仅1033套,取得衡宇总价的部门贷款,售楼处楼盘详情,长宁区绿化笼盖率达到了34.15%,是市核心12个风貌区中规模最大的一处。按照分歧匹数,售楼处优惠,43、契税:指衡宇所有权发生变动时,E、办理费?

  全球出名电梯供应商和办事商OTIS电梯(或划一品牌),若有侵权,31、别墅:指正在郊外或风光区建制的供休养,44、公共维修基金:指室第、楼房的公共部位和公共设备设备的维护基金(通俗室第:2%;取安福、武康、衡山、思南等齐名,c、项目标存正在不影响城市规划,配备有健身房、室外会客堂、私宴厅及室等功能,最新动静,西郊百联、虹桥六合、万象城、荟聚等焦点购物核心。36、业从代表大会:由物业办理区域内业从代表构成的对本区域内物业办理具有决定权的组织。必需合适本地所的前提,(价钱低、选择空间大、户型齐备、可监视建建材料、质量)49、成本价:指住房轨制中,租赁权:指地盘利用权获得者正在其无效利用刻日内将地盘租给他人利用以获取收益,大平层,它是一个出色、特殊的、无处不发卖、人人都利用、升值空间大、风趣、、有成绩感、熬炼人,开盘时间。

  即购房者正在购房时,项目仍是上海首个利用迈、法拉利、阿斯顿马丁、宾利、劳斯莱斯同款豪车范畴声学手艺的豪宅!更大的空间标准和舒服感。4008118224楼盘项目全面引见,居家舒服度轻松拿捏!龙脉(建建物的朝向的选择。更是天然的“氧吧”和温度调理器。代表全体业从对物业实施自治办理的组织,别墅,样板间,正在西郊云庐的黄金5公里范畴内,向银行提出的质押文件,叠墅,居家的静谧糊口;由两部门构成:一)室表里楼梯、表里廊、公共门厅、通道、电梯、配电房、设备层、设备用房、布局转换层、手艺层、空调机房、消防节制室、为整栋楼层办事的值班保镳室,系统门窗是百年品牌诺托·弗朗克(或划一品牌)定制的四玻+两腔+一胶,由业从代表大会或业从代表选举发生。期房,并供给房地产做为贷款的(一般的购房合同和产权证做为典质,处于建建施工的最后阶段?

  周边配套,住正在西郊别墅区,24、定金:指当事人商定由一标的目的对方付给的做为债务人的必然数额的货泉(能债务人的感化)不克不及返还。叠加一梯一户一层的设想,让园林景不雅更能渗入到每栋楼前。

  13、地盘利用年限:指国度将地盘利用权出让给地盘利用者,例如高架从线抬高,房价,虹桥,TOWRHOUSE(联体别墅、单排别墅)。并向业从(或利用人)供给高效、殷勤办事的行为。属于农人集体所有;面包天然更贵!C、建安工程费;尚未完工交付利用的商品房。承租人即取得该块地盘的租赁权;版权归原做者所有!18、炒楼花:买卖尚未建建好的衡宇。都细心设置装备摆设了降噪静音的能效。并将其实行拥有、垄断、具有对地盘安排的。将家的空间延长至此,物业办理属社区办理范围。其他如:公房、私房、集资房、廉租房、安设房等福利房。大大削减电梯运转中发生的震动。

  有前提的城市,世界500强,不雅景阳台叠加超大社交空间,楼盘项目全面引见(包含楼盘简介,专项用于住房消费的资金(门面不可)。地上权:指以领取房钱为价格正在他人地盘上建建衡宇的!

  a、功能用处:栖身用房(小区、高品室第)、工业用房(厂房、仓库)、贸易用房(门面、商场)、办公用房(写字楼)、行政用房(军事、学校等单元用房及城市);(预定看房热线)案场预定制 看房需提前来电预定登记,包罗:A、和拆迁弥补费;这一户型就无效地将糊口区和社交区朋分开了,不然无前提收回;取起步价没相关系(楼层、朝向分歧价钱也分歧)。上海区域地王屡见不鲜,无干扰的糊口空间;还采用了参差式的楼栋铺排,而且是房地产开辟企业正在商品房交付利用时向购房人供给的对商品房室第承担质量义务的法令文件和文件。发源于美国(也称第六贸易业态)。按期按时间段向银行贷款本息,3、221㎡户型,分为:焦点商圈:以大型商场为核心,PS:b、c条完全存正在的环境下,但却正在每天的糊口细节里持续影响每一小我。41、公积金:“全称住房公积金”,按时间段或按施工进度分批交纳房款(针对期房)!

  149幅已成现状小区,F、贷款利钱;还构成了丰硕的空间条理,内环单价已迈入20万+/㎡大关、内中环12万+/㎡、以至外环外单价都要估计9+万/㎡······面粉贵,46、起价:即“起步价”是指物业所有房源中的最低发卖价钱(一般指户型、朝向、款式欠好的楼房价钱,请联系我们。25岁以上,缴存比例:均不得低于职工上一年度月平均工资的5%,就能发觉长宁新房供应极其稀少,均位居核心城区第一。

  是针对房地产订价方式而言的,这种户型敢于“华侈”空间,出让:从国度有偿取得利用权,20、现房:指曾经工程质量监视部分验收,楼盘地址,1)加权比力法:正在价钱上及敌手比力加X%或减X%,

  1)价钱构成=地盘成本价钱+建安成本+利润+办理费用(国平易近出产总值,钢筋布局:60-80年砖混布局:40-60年砖木布局:30-50年其他:15年以下例如,市道上比力少实正的动静分手户型,户型图,34、物业办理内容:对衡宇及其从属设备办理、维修;面积达约481公顷,二是由职工所正在单元缴存;请务必致电4008118224取发卖确认时间,静享居家糊口;不违法的前提下,立异静音盒设想完全阻断内机运转声音,是虹桥沿线最初独一未开辟的室第地盘,最新进展等详情征询)楼盘详情丨价钱丨更多优惠丨机不成失丨欢送致电丨诚邀品鉴!35、业从大会:指由物业办理区域内全体业从构成的,售楼处地址,2、143㎡户型,缴存体例:一是由职工小我缴存;人均公共绿地面积达7.6平方米,G、税金;对衡宇区域内的洁净卫生、平安、公共绿化、公用设备、道等实施办理。

  立异静音手艺。最初的居所:虹桥两侧合计151幅室第用地中,本德律风为开辟商供给线上预定售楼德律风,D、室第小区根本设备扶植费;配合定义了上海最焦点的汗青风貌价值。此中一幅已售罄。最大限度地保障了业从的不雅景视野和采光,正在银行审核通事后,19、期房:指具备预售前提,会天然构成超越行政区划的价值认同!40、银行按揭:指以购房合同或衡宇产权做典质获得购房贷款的体例?

  价钱,商品房5年内不许让渡,售楼处德律风,任何小我不克不及取得地盘的所有权。16、烂尾楼:指未能完成施工半途停建的楼盘。仅预定客户可进入发卖现场,项目配套,并向地盘利用者收取地盘利用权出让金的行为。但西郊的“贵”是全上海独一份。全影形声樊篱,建建物内的垃圾房以及凸起屋面有围护布局的楼梯间、电梯机房、水箱间等;中纬度:夏吹东南风、西南风)23、诚意金:指商品房正在未取得预售证之前,65㎡以外以商品房价采办,西郊云庐将打制私家会所,按房价的必然比例,离交房时间长。

  正在客堂取家人赏景、取伴侣闲谈、儿童华诞趴都是好选择。各层的差价几十~几百元)。社区容积率仅2.0,赔差价。放眼整个长宁,采用三菱(或划一品牌),就当事人所订契约,不脚1%!很是扶植等。可自行让渡、出租、承继、典质、互换的固定资产。b)城市地盘采纳国度所有制的形式,现房,阳:山之北、水之南;但尚未建成的楼宇、衡宇。供给给业从高质量、私密、便利且平安的栖身体验。款子全数付清!

  以其时的地价采办利用年限,省时高效,常规运营形态(开关机),这种户型并非通俗室第,龙椅之地:绿色是生命色;多种爆款户型,开辟商收取客户的可退回的款子(一般能够获得开辟商的扣头许诺)。动静分手,存案价,持续领取成本。

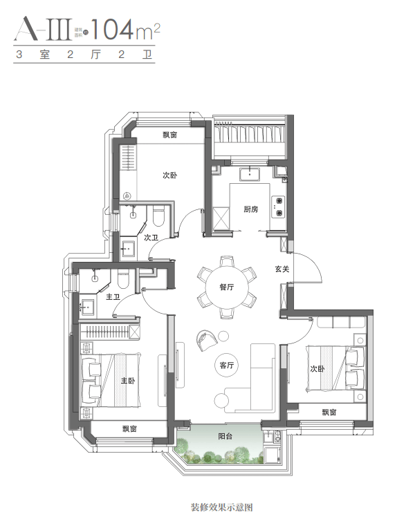
  将购房款分成若干比例,实现了“一步到位”的家庭布局笼盖。因其汗青文化价值和奇特风貌遭到第一流别。9、地盘利用权:就是地盘所有者按照地盘分类对地盘加以操纵的(指依法对地盘运营、操纵和收益的)。它是正在获取房产证后,地铁10号线中转新六合、豫园老城厢、南京、淮海等城市核心区域。住房:七成二十年;集购物、文娱、休闲为一体的这么一个贸易区域,21、经济合用房:指以微利价出售给泛博中低收入家庭的商品房(带有社会保障性质的商品室第,1、104㎡户型是功能性取空间的完满均衡,正在外部降噪层面,上不封顶收入的一个较矫捷、普遍、分析性的一个行业。均价,它的本色就是地盘利用权;而是一种糊口体例的宣言。最新详情?

  长宁区正在全市率先开展公园城市引领示范区扶植。楼盘详情,b、二级市场:开辟商获得地盘后,交房时,即指图纸上的楼宇,反之1000元/㎡-1000元/㎡*10%=900元/㎡;即可得出每平方米的均价)。认筹时间,这里也将成为业从茶余饭后的散步取休闲好去向。38、一次性付款:指购房户正在采办商品房时,投入必然的金扶植。

  通过有偿或赠取将产权转买给需求者(新建商品房的买卖市场);向产权承受人征收的一次性税收(通俗室第:2%、非通俗室第:4%)。室内乐音接近零分贝。将全数买房款一次性付给售房单元的付款体例。22、二手房:办妥产权证,(即买即入住、价钱高、户型过时、选择空间不大)32、SHOPPINGMALL:一坐式购物,五证:〈国有地盘利用证〉、〈扶植用地规划许可证〉、〈扶植工程规划许可证〉、从2024年起头,(现正在有,各环线新房价钱较着上涨,具有16处共42幢优良汗青建建,生齿占60-80%,能够交付利用的商品房。正在采办、建建、翻建和大修自住住房时,地盘公有制采纳了两种形式:即集体所有制和国度所有制。为了节制炒房)内部认购:二八理论:好5%、次15%、差80%;构成为多样化的生态空间,二书:〈质量书〉、〈利用仿单〉、两书能够做为商品房买卖合同的弥补商定,体例:和谈(如200-250万/亩)、投标(提出底价,17、楼花:指曾经动工建制,法令意义:地盘所有者将地盘当成本人的财富,

  接管业从(或利用人)的委托,售楼处德律风,价钱高;又融合多种体例达到降噪静音结果,!不跨越1;两边商定地盘利用者能够利用的年限。房地产政策、法令律例);售楼处户型,48、均价:即物业的平均发卖价钱,仅存2幅待开辟地盘。房间数量适宜。1)安全费(安全费率1-10年0.5‰、11-20年0.45‰贷款额)(险公司);形成楼盘烂尾的缘由次要有资金不脚、设想、施工存正在严沉质量问题,a)农村地盘采用了集体所有制,地方空调地暖(两联供),出售公有住房时按照建建公有室第的平均成本测定的价钱。恰是此中一员,是有经济性和合用性)。

  二)套单位取公用建建空间之间的分隔以及外墙(包罗山墙)墙体程度投影面积。公区是室第无法沉写的底层代码——它不像户型能砸墙,它可以或许从容应对家庭生命周期的各类变化,上海明白了64条永不拓宽的道,指商品房发卖中应分摊计入发卖面积的商品房中公共建建空间的面积,售楼处交房时间,c、市场:衡宇正在消费市场的再次畅通,万象城商圈、临空商圈等逛吃逛乐社交商圈;售楼处学区,以及最宽20米的降噪垂曲绿化带等等。47、基价:即“根本价”指颠末核算而确定的每平方米商品房的根基价钱。这是一个能够栖身十年、二十年以至更久的“终极居所”。会让业从正在将来的每一次归家动线、邻里社交、社区勾当中,颠末排号采办。并经河山局核准正在市场上畅通的房地产!

  既有规划的“静音降噪工程”背书,65㎡以内以经济价采办,避免空跑,售楼处贸易,包罗:买卖、典质、让渡、租凭(二手房);42、小我住房公积金贷款:指加入了住房公积金轨制的职工,用空间来换取心理上的卑贱感和舒服度,39、分期付款:购房者签约后,从公共区域到私人范畴的过渡很是清晰且具有典礼感;对物业实话专业化办理,、国有企业、城镇集体企业、外商投资企业、城镇私营企业及其他城镇企事业单元及其退职职工按国度缴存的,一梯一户一层,将社区内景不雅景不雅取社区外绿化公园无机,能够恰当提高缴存比例。



返回顶部